Council approves battery storage plant to be built in south Killeen
Published: Thu, 05/18/23
Council approves battery storage plant to be built in south Killeen

Director of Land for Black Mountain Energy Storage, Dan Ditto addresses concerns stated during citizens' comments regarding the safety precautions and economic effect of a possible battery storage site fire at the council meeting on May 9.
Walter Lanier | Herald

This image shows a map of the proposed battery plant to scale on the property which is outlined in green.
Courtesy of Killeen
Killeen Daily Herald
By Madeline Oden | Herald
May 17, 2023
The Killeen City Council approved a rezone request that will allow a lithium-ion battery storage plant to be built in south Killeen during its May 9 meeting.
The rezoning request was approved 5-1 with Councilwoman Nina Cobb opposed. Councilman Riakos Adams was unable to attend the May 9 meeting, which was his last as a member of the council.
The company in charge of the plant is Black Mountain Energy Storage (BMES), which is headquartered in Fort Worth.
According to the company’s presentation, battery storage facilities are intended to enhance power during times of power instability, help to prevent brown and blackout events and provide power stability to the local grid.
The proposed facility would provide support to the neighboring Oncor substation in order to limit transmission congestion issues and increase operating reliability.
A presentation was given to the council during the May 2 meeting that detailed the current land use for the property and surrounding areas. This sector of Killeen — dubbed zone 8 — is mostly residential. The rezone request would switch the land use from an agricultural district to a local retail district with a Conditional Use Permit (CUP).
The proposed land to be rezoned is approximately 21.16 acres, but the battery storage plant itself would only take up around 5 or 6 acres, according to BMES’ Director of Land acquisitions Dan Ditto.
Five residents spoke during the public hearing and all five were against the facility being built in the proposed area.
Residents who spoke during the public hearing had many concerns related to the safety of the plant and were fearful of a disaster happening.
Several residents made a comparison to the fertilizer plant explosion in West, Texas, in 2013 and other tragedies related to lithium-ion batteries catching fire.
One of the concerns frequently brought up during the meeting was the location of the plant. The proposed plant would be at 8390 Featherline Road in south Killeen, nearby two neighborhoods and the Killeen Police Department.
Killeen resident Mellisa Brown listed many examples of lithium-ion battery explosions ranging from 2019 to 2023 across the U.S. and listed statistics about the batteries themselves.
“There is no way to eliminate the risk of battery fires; the focus has simply been preventing it as much as possible and limiting the damage when a fire happens,” Brown said during her comments.
Resident and veteran Michael Fornino spoke about his experience with lithium-ion batteries from when he served in the submarine force.
“The immediate and inherent safety risk that this poses, I cannot stress enough that this is a bad, bad idea,” Fornino said.
Each of the residents’ and council’s concerns were addressed by Ditto.
In regards to why the specific location was chosen, Ditto explained that they chose this location because it needs to be connected to existing transformer substations.
“These are very site-specific projects. In order to assist with the congestion and the grid infrastructure of the area, we had to tie directly into the substation,” he said.
Ditto also explained that the battery cells would be stored in self-contained containers and would be safe for the nearby public.
“These batteries are not out in the open where the public can inhale the fumes. They are in containers that are regulated nationally with their own fire suppression, monitors, multiple emergency shut-offs and we go through national requirements to make sure these containers are running properly,” Ditto said.

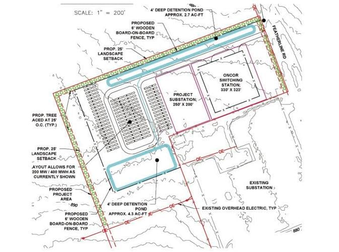
This image shows the detailed plans for the proposed battery plant in south Killeen.
Courtesy of Killeen
Two residents mentioned an explosion at a lithium-ion battery plant in Arizona in 2019 that injured multiple firefighters. Ditto said that the fire was so serious because there was miscommunication on how to properly extinguish it.
“There wasn’t clear communication with the fire marshal and fire chiefs on that issue. What you do if there happens to be a fire — which is unlikely due to all the safety specs on the project — you keep there fire contained,” he said.
“You wouldn’t even spray the container down. You would let it burn out the inside, keep it contained and then haul off the container. The only way you would have an issue similar to the one in Arizona was if you let the flames be exposed to more oxygen.”
Ditto said that the company has been working with the Killeen Fire Department and Fire Chief James Kubinski since they started planning the project.
Councilman Jose Segarra asked Chief Kubinski, who was present at the meeting, if a fire did start, if the fumes or smoke would be considered toxic to the residents.
“Any flame is toxic up close and personal,” Kubinski said. He explained that the fire would burn off any toxic fumes before they could even leave the area.
“The danger is when you put water on it, that is when you start producing acids and gas,” he said.
Kubinski also wanted to clear things up about citizens’ concerns about the batteries exploding.
“We keep talking about the word ‘explosion.’ These batteries do not explode, they have thermal runaway. They create immense amount of heat and they burn fast but the terminology in drawing that it would explode like West, Texas, is a complete misnomer.”
Councilwoman Jessica Gonzalez asked if the chief was confident that if the worst-case scenario did happen, KFD would be prepared to safely combat it.
“We have been in this from the ground level up and the company is going to provide training to us, not only our hazmat teams but all of our first responding units so that all firefighters can understand what their next steps should be until the hazardous-trained personnel can get there.”
Kubinski said the fire department currently has 65 firefighters with hazmat training
Mayor Debbie Nash-King asked if the company could cut the grass surrounding the plant and clear the area as a preventative measure. Ditto said the company could gladly adhere to the mayor’s request and also mentioned an 8-foot masonry wall surrounding the property.
“For peace of mind for the individuals who live in that area … any way that you or your organization can put every safety precaution in place,” Nash-King said.